こんにちは。
先日、TIG溶接機を購入したことはお話ししたと思う。
いざ、やってみると頭で想像していたよりも難しい。かなり練習しないといけない。

ところでこの溶接機、本体とガスボンベが別置きなので、ちょっと移動したいときなどに不便だ。できればボンベと一緒に移動できるようにしたい。
よし!溶接セット移動用のワゴンを作ろう。
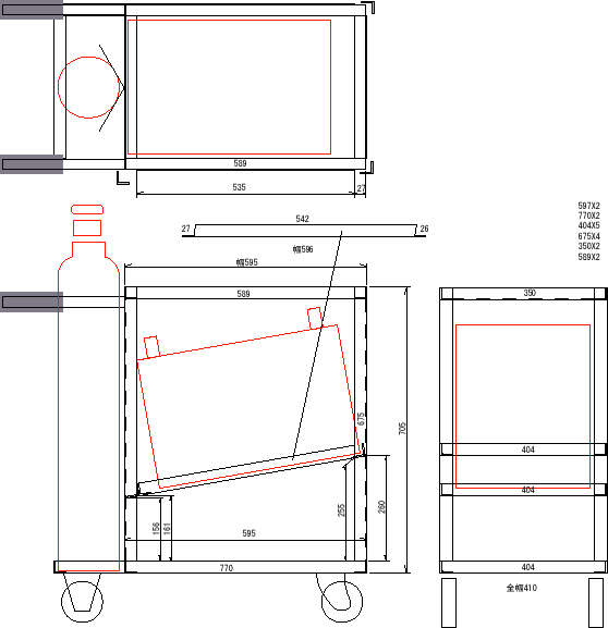
まずは設計から。頭で想像するだけで作り始めるのは時間と材料の無駄につながる。 図面を描く。

ざっとこんな感じ。溶接機は操作パネルを少し上向きにして操作しやすいようにする。溶接機の下にはスペースを設け溶接機の備品を収納できるようにする。
溶接機の上にもトレイを設ける。ここには溶接作業中に使う工具や材料を置くことができる。また、溶接機のホコリよけにもなる。
溶接機の後ろにはガスボンベを立てて置く。チェーンでワゴンにしっかり固定できるようにする。
では製作にかかる。鋼材屋で30mmX30mmX3mmのアングル材を買ってくる。1本が5.5メートルで800円足らず。安いものだ。これを2本使う。
まず、材料取り。図面の寸法に切断し、端を仕上げていく。

次は溶接だ。こういったアングル材などの構造用鋼はシールドガスに炭酸ガスを使う半自動溶接の方が速くて効率がよい。

ただし、溶接は溶接する順番や仕方で大きくひずんでしまうので、ある程度の経験が必要だ。僕は溶接免許も持たない素人だけど、2年近く経験を積んでいる。
目を強い光から守るために溶接面が要るのだが、いまは自動遮光面なるものがあって、溶接する前はやや暗いものの普通に見えているが、溶接が始まった瞬間にセンサーで液晶のフィルターを黒く変え、目を紫外線から守る。その早さ、1/20000秒以内というから驚きだ。
これがあるお陰で両手を使って、素人でも安定した溶接が可能になるのだ。
向こうにある緑色のボンベが液化炭酸ガスのボンベ。黄色いのが半自動溶接機だ。
これから部材を直角に立てて溶接する。直角とは言ってみたもののそう簡単な話ではない。
溶接すると溶接部分は確実に縮む。初めての人が板を直角に当てて溶接すると、溶接が終わったときには直角では無くなっている。縮みを予測して少し斜めにして溶接を始める。 これはいくら口で説明してもやってみなければ分からない。

よし。フレームができた。直角もしっかり出ている。我ながらかなり正確にできた。
この辺が板金と違うところだ。


次はキャスターの座とボンベの固定部分を取り付ける。
つづく